RIF. A352 GIANOLA VIA DEL MARE APPARTAMENTO A 100 MT DAL MARE

175.000 €
70 m²
Superficie
5
Locali
3
Camere
1
Bagni
in vendita
appartamento
Formia [Gianola]
Descrizione
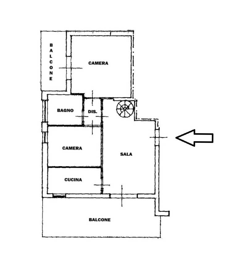
RIF. A352 Gianola Via Del Mare: appartamento su due piani situato nel parco Aurora, a soli 100 metri dal mare. Con una superficie di 70 mq, questo immobile offre un'accogliente sala da pranzo con affaccio su una spaziosa balconata, perfetta per godere di momenti di relax all'aperto. La cucina è funzionale e ben distribuita, ideale per preparare deliziosi pasti. L'appartamento dispone di due camere da letto al piano inferiore e un bagno, mentre al piano superiore troverai un'ulteriore camera che può essere utilizzata come studio o stanza degli ospiti. Completa la proprietà una splendida terrazza solarium, dove potrai prendere il sole e goderti la vista circostante. Con aria condizionata per il massimo comfort e un posto auto scoperto, questo appartamento è la scelta perfetta per chi cerca una soluzione abitativa in una posizione privilegiata. Non perdere l'occasione di vivere a pochi passi dal mare! Questo immobile, costruito nel 1980, offre un grande potenziale per personalizzarlo secondo il proprio gusto. EURO 175,000. 00.
Caratteristiche principali
Codice:
RIF.A352
Città:
Formia (Gianola)
Categoria:
Appartamento
Locali:
5
Camere:
3
Bagni:
1
Mq:
70
Posti auto:
1
Balconi:
2
Mq Balcone:
17
Terrazzi:
1
mq Terrazzo:
32
Piano:
2
Anno:
1980
Classe energetica:
F
400 kWh/m²a
Stato Immobile:
Abitabile
Grado:
Medio
Posizione:
Mare
Panorama:
Vista Aperta
Orientamento:
Sud Est
Lati Liberi:
2
Giardino:
No
Arredi:
Non Arredato
Tipo Soggiorno:
Sala da Pranzo
Tipo Cucina:
Cucinotto
Riscaldamento:
Autonomo
Tipo Riscaldam.:
Pompa di Calore
Tipo Impianto:
Aria
Fonte Energetica:
Elettrico
Acqua Calda:
Autonoma
Raffrescamento:
Split
Infissi:
Metallo
Serramenti:
Discreto
Persiana:
Persiana Metallo
Pavim. Giorno:
Ceramica
Pavim. Notte:
Ceramica
Pavim. Cucina:
Ceramica
Pavim. Bagno:
Ceramica
Accesso Disabili:
No
Accesso interno disabili:
Non accessibile
Isolamento:
Non presente
Isolamento termico:
Nessuno
Isolamento acustico:
Nessuno
Impianto d’irrigazione:
No
Accessori
Aria Condizionata
Parco Condominiale
Mappa
Via Del Mare, 32 - Formia (LT)
Distanze
Posizione
Mare100 m
Cookie preference