4° B RIF.A349 FORMIA APPARTAMENTI DI NUOVA COSTRUZIONE

195.000 €
75 m²
Superficie
3
Locali
2
Camere
2
Bagni
in vendita
appartamento
Formia
Descrizione
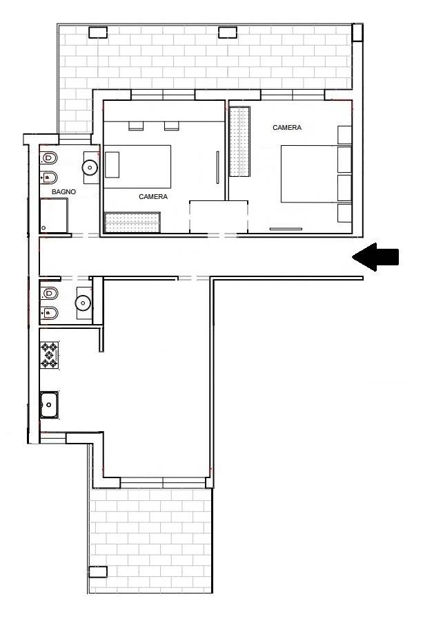
4° B RIF. A349 Formia: In parco di nuova costruzione, proponiamo in vendita un elegante appartamento al piano primo di circa 75 mq, situato in palazzina moderna dal design curato e contemporaneo. La soluzione si compone di ingresso in soggiorno con angolo cottura, ambiente unico e luminoso con ampio balcone, camera matrimoniale con bagno privato e balcone, seconda camera e secondo bagno. Completano la proprietà ampie balconate dim 33 mq, ideali per godere di spazi esterni vivibili e riservati. L’immobile dispone di posto auto esterno e vi è la possibilità di acquistare box auto e cantinola separatamente. Realizzato con struttura antisismica di ultima generazione, offre elevate prestazioni di isolamento termico e acustico certificato, infissi in PVC a taglio termico con persiane motorizzate, riscaldamento autonomo con caldaia a condensazione, predisposizione per climatizzazione Dual Split, pannelli solari termici per la produzione di acqua calda sanitaria, predisposizione per impianto d’allarme e videocitofono a colori. Finiture moderne e materiali di prima scelta completano una proposta abitativa di alta qualità, ideale per chi cerca comfort, efficienza e stile contemporaneo. L'acquisto di questa soluzione permette infine di usufruire delle agevolazioni fiscali previste dal bonus ristrutturazione al 50% dello Stato. EURO 195.000, 00.

- *Disponibilità di varie metrature*, da *55 mq fino a 110 mq*, tutti comprensivi di *ampie balconate* panoramiche o con scorcio vista. - Possibilità di *personalizzare gli spazi interni* su richiesta, in base allo stato avanzamento lavori. - *Posto auto in garage* e *cantinola sottostante* disponibili su richiesta. - Soluzioni adatte sia per investimento che per uso residenziale. Per maggiori informazioni o per fissare un appuntamento in agenzia, non esitare a contattarci.

Caratteristiche principali
Codice:
RIF.A349
Città:
Formia
Categoria:
Appartamento
Locali:
3
Camere:
2
Bagni:
2
Mq:
75
Posti auto:
1
Balconi:
1
Mq Balcone:
33
Piano:
1
Anno:
2026
Classe energetica:
A+
30 kWh/m²a
Stato Immobile:
In Costruzione
Grado:
Signorile
Posizione:
Collina
Panorama:
Vista Mare
Orientamento:
Est Sud Ovest
Lati Liberi:
3
Giardino:
Comune
Arredi:
Non Arredato
Tipo Soggiorno:
Sala da Pranzo
Tipo Cucina:
Angolo Cottura
Riscaldamento:
Autonomo
Tipo Riscaldam.:
Caldaia
Tipo Impianto:
Radiatori
Fonte Energetica:
Metano
Acqua Calda:
Autonoma
Raffrescamento:
Split
Infissi:
PVC Doppio Vetro
Serramenti:
Nuovo
Persiana:
Tapparella PVC
Pavim. Giorno:
Ceramica
Pavim. Notte:
Ceramica
Pavim. Cucina:
Ceramica
Pavim. Bagno:
Ceramica
Isolamento termico:
Isolamento solaio
Accessori
Antifurto
Aria Condizionata
Ascensore
Cancello Elettrico
Doppi Vetri
Doppio ingresso
Fibra Ottica
Impianto Satellitare
Pannelli Solari
Parco Condominiale
Porta Blindata
Tapparelle Elettriche
Tennis
Video Citofono
Mappa
Via Rio Fresco - Formia (LT)
Cookie preference